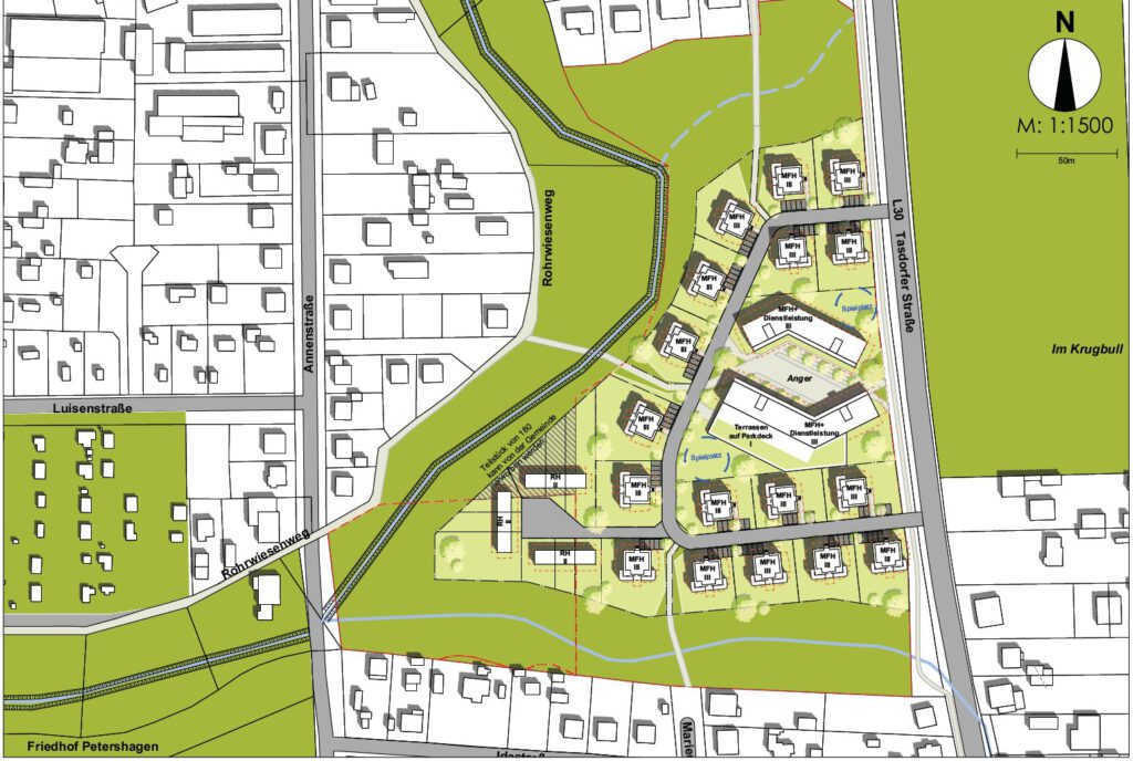
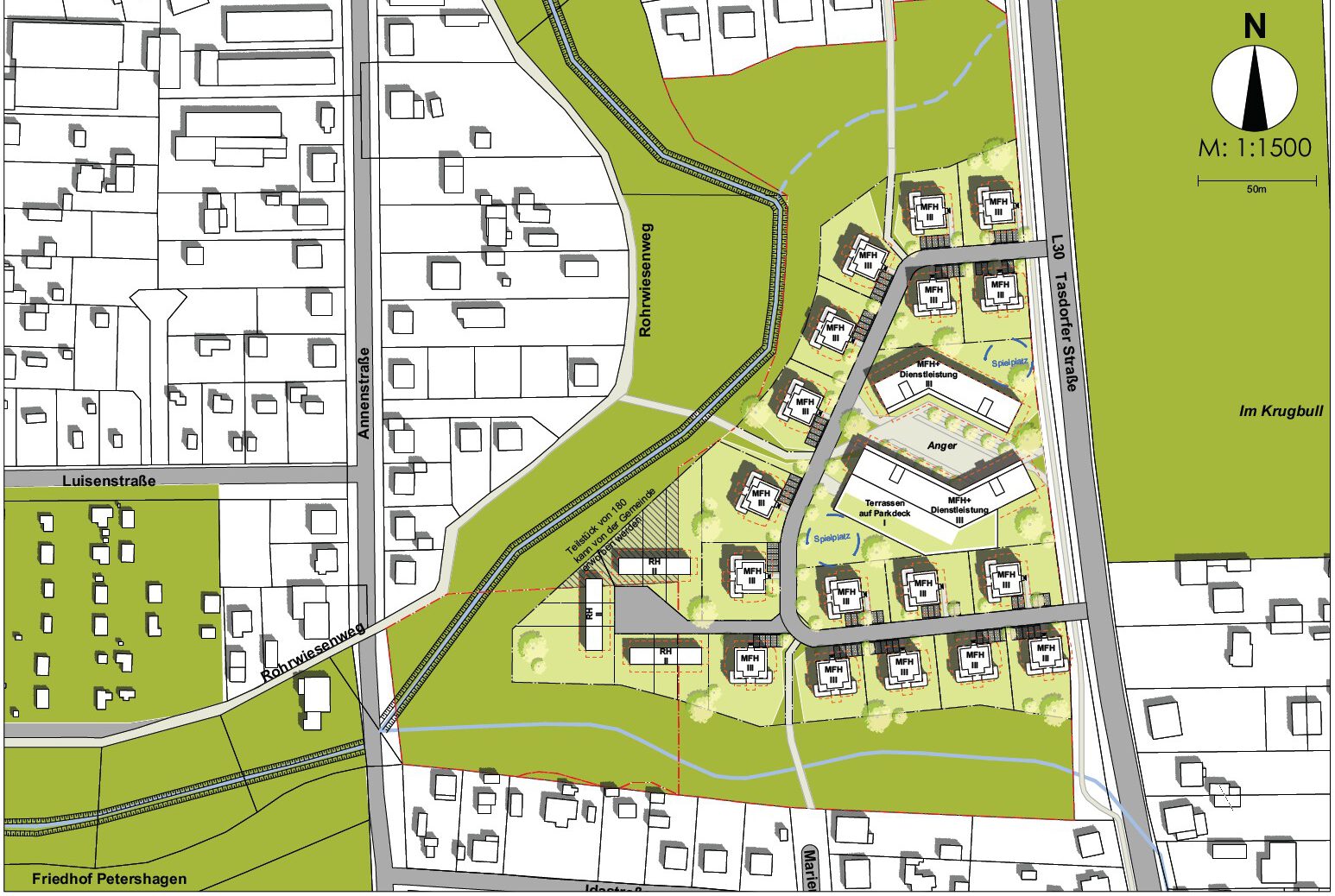
Das Quartier „Anger an der Laakenwiese“ ist als urbanes Wohngebiet mit klarer Mitte konzipiert. Herzstück des Ensembles ist der zentrale Anger, an dem sich Dienstleistungen und Servicewohnen orientieren und der als identitätsstiftender Begegnungsort mit hoher Aufenthaltsqualität das nachbarschaftliche Leben prägt.
Entlang einer ringförmigen Erschließung entstehen villenartige Mehrgenerationshäuser, ergänzt durch familiengerechte Reihenhäuser und Servicewohnen mit medizinisch bzw. pflegenahen Angeboten. Die Wohnungen sind flexibel aufteilbar, barrierefrei erschlossen und mit privaten Freiräumen differenziert ausgebildet – mit Gärten im Erdgeschoss sowie Balkonen und Dachterrassen in den Obergeschossen. So entsteht ein Quartier, das auf unterschiedliche Lebensphasen reagiert und selbstbestimmtes Wohnen im nachbarschaftlichen Zusammenhang ermöglicht.
Besonderes Gewicht liegt auf der Verbindung von Architektur, Freiraum und Energie. Der Erlebnisraum Natur soll das Wohngebiet in mehreren Ebenen durchdringen; intensive Gründächer, minimierte Versiegelung, unterirdisch organisierte Nebenanlagen und ein sensibler Umgang mit Regenwasser stärken die ökologische Qualität des Standorts. Ergänzt durch Smart-Living, Ladeinfrastruktur für E-Mobilität und ein mit lokalen Versorgern gedachtes Energiekonzept entsteht ein Quartier mit hoher energetischer Eigenversorgung und klarer Zukunftsorientierung.
Mit „Anger an der Laakenwiese“ entwickelt Büro13 Architekten ein generationenübergreifendes Wohnquartier, das Servicewohnen, Mehrgenerationenwohnen und Familienwohnen in einer gemeinsamen, landschaftlich geprägten Struktur verbindet. Ein zentraler Anger als Quartiersmitte, barrierefreie Wohnangebote, Gründächer, Passivhausstandard und ein regenerativ gedachtes Energiekonzept schaffen ein zukunftsorientiertes Wohnumfeld mit hoher Aufenthaltsqualität. So entsteht ein nachhaltiges Quartier, das soziale Nähe, ökologische Verantwortung und architektonische Klarheit zu einem identitätsstiftenden Ganzen zusammenführt.




