Nichtoffener Realisierungswettbewerb, 2009.
Der Wettbewerbsbeitrag, der barrierefreies Wohnen, gemeinschaftliche Freiräume und stadträumliche Reparatur in einem kompakten Ensemble zusammenführt.
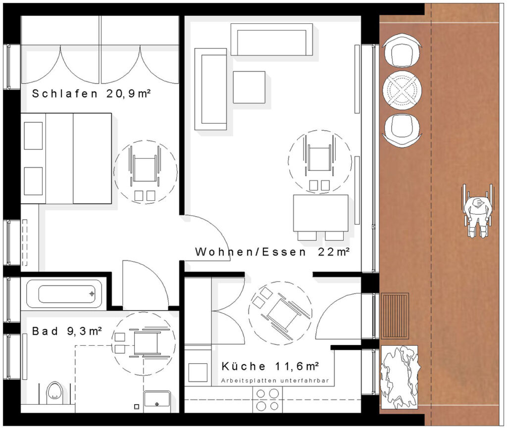
Der Wettbewerbsbeitrag für die Stadt Apolda beantwortet die Aufgabe des Auslobers auf zwei Ebenen: als konkreter Realisierungsvorschlag für eine altengerechte Wohnanlage mit 40 Wohnungen und gemeinschaftlichen Nutzungen sowie als städtebaulicher Impuls für das umliegende Quartier. Im historischen Stadtzentrum entwickelt der Entwurf eine Wohnform, die barrierefreies Wohnen, soziale Nähe und eine qualitätsvolle Einbindung in den Stadtraum miteinander verbindet. Das architektonische Konzept sieht zwei kompakte Baukörper vor, die das Quartier räumlich fassen und mit einer klaren Blockschließung auf die gewachsene Stadtstruktur reagieren. Im Mittelpunkt steht ein geschützter, innenliegender Bewohnergarten, um den die Wohnanlage organisiert ist. Die Wohnungen werden vom Hof aus über offene Laubengänge erschlossen. Diese sind nicht nur Zugangszonen, sondern erweitern die Wohnungen um kommunikative Übergangsbereiche mit hoher Aufenthaltsqualität. Ein rollstuhlgerechter Aufzug im zentralen Treppenhaus gewährleistet die barrierefreie Erschließung aller Ebenen.
Die Wohnungsgrundrisse sind konsequent auf die Bedürfnisse älterer Menschen ausgerichtet. Die Aufenthaltsräume orientieren sich nach Süden und zum Garten, die Nebenräume zur Straße beziehungsweise nach Norden. So entstehen helle, ruhige und gut nutzbare Wohnungen mit klarer Zonierung. Der Wohnraum ist als großzügiger, kommunikativer Mittelpunkt der barrierefreien Wohnungen gedacht; unterfahrbare Arbeitsplatten und die übersichtliche Organisation der Räume unterstützen den altersgerechten Alltag. Ein wesentlicher Baustein des Entwurfs ist der gemeinschaftliche Begegnungsbereich. Mit dem eingeschossigen „Rittersaal“, seiner angelagerten Terrasse zum Garten sowie dem Foyer wird die von der Auslobung geforderte gemeinschaftliche Nutzung in überzeugender Weise umgesetzt. Der befestigte Gartenhof ist diesem Bereich direkt zugeordnet und schafft Raum für kleine Feste, gemeinsames Grillen oder nachbarschaftliche Aktivitäten. Damit wird die Wohnanlage nicht nur als Ort des Rückzugs, sondern auch als sozialer Lebensraum gedacht.
Auch die Freiraumplanung folgt dieser doppelten Logik aus Ruhe und Begegnung. Die rund 4.300 m² große Grundstücksfreifläche gliedert sich in Gartenräume mit Wiesen, Hecken und Blumenrabatten, in einen befestigten Hofbereich sowie in Erschließungs- und Parkierungsflächen. Der Garten dient im Wesentlichen der kontemplativen Erholung, während die befestigten Bereiche gemeinschaftlich nutzbar sind. So entsteht ein differenziertes Freiraumangebot, das den Alltag älterer Bewohner ebenso unterstützt wie das soziale Miteinander. Über den Realisierungsteil hinaus formuliert der Beitrag einen präzisen städtebaulichen Ideenteil. Der angrenzende Schulplatz wird durch bauliche Einfassung, Baumdach und Wasserspiel als öffentlicher Stadtraum aufgewertet. Für die Bachstraße schlägt der Entwurf eine verkehrsberuhigte Gestaltung mit Solitärbaum, Bänken und neuen Stadtgärten vor. Damit versteht sich das Projekt nicht als isoliertes Gebäude, sondern als Impuls für die Weiterentwicklung des gesamten Umfelds. Gerade in dieser Verbindung von altengerechtem Wohnen, Gemeinschaft und Stadtreparatur liegt die Qualität des Wettbewerbsbeitrags.
Gestalterisch setzt der Entwurf auf eine ruhige, präzise und der Altstadt angemessene Architektursprache. Ein farblich einheitliches Material für Dach und Fassade, die Ausbildung der Traufe ohne Dachüberstand sowie die kompakte Bauweise fassen die Gebäudehülle zu einer klaren Einheit. So entsteht ein Neubau, der sich selbstverständlich in den historischen Kontext einfügt, ohne auf Eigenständigkeit zu verzichten.








